400707
SPOT LED ATEX – AR040
-

Max : 780 -

12Vdc 24Vdc -

67 -

0.54 Kg -

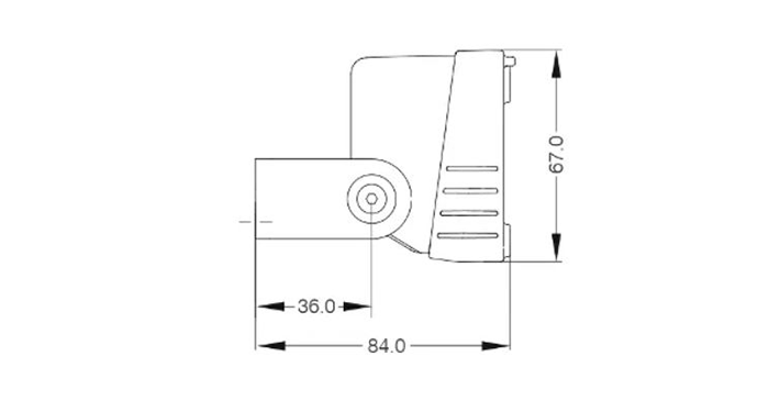
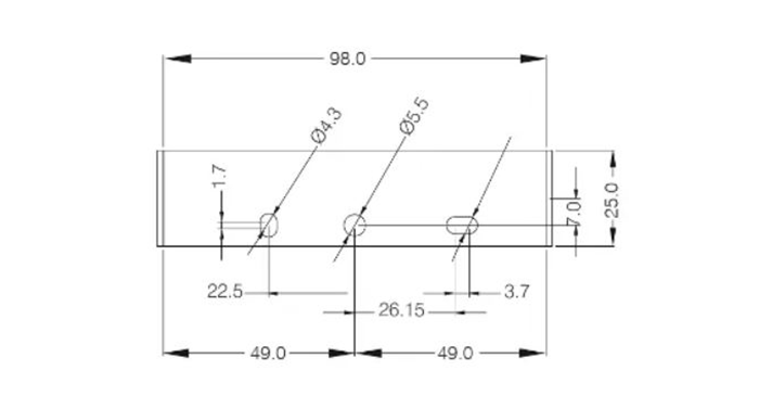
120 x 62 x 87 -

12 Watt(s) -

led -

De 0 à 6700








Le spot LED Atex AR-040 est spécialement conçu pour les industries pétrochimiques, gazières et minières en zone atex 2 et 22.
Fonctionnant en basse tension (12/30V DC) il offre un éclairage de 780 lumens. Etanche (IP67) il peut être utilisé par temps de pluie.
Conçu en aluminium et en acier inoxydable, il est particulièrement résistant et dispose d’une vitre en polycarbonate antichocs. Il offre un angle de rotation de 155° et grâce à son support en acier inoxydable vous pouvez aussi bien le monter sur un mur que sur une surface en pente.
Il est disponible en 3 optiques différentes pour répondre au mieux à votre besoin en éclairage. Compact et léger le spot AR-040 est idéal pour les espaces confinés.
Le spot référence 400 707 a un angle d’éclairage de 38°.
Type : Autres éclairages
Couleurs : gris
Utilisation °C : de -30 à 50
Norme : atex
Garantie : 12 mois
Secteur(s) activité :
batiment
industrie
tertiaire